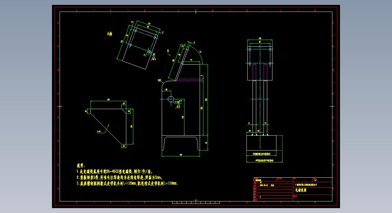
SA-4502棘轮机构(套图)